卒業設計2023
「都市をつなぐ軒下」
Seinosuke Kondo
住人の減少や高齢化が進む地方における都市の持続可能性を模索する時、その場所の過去・現在・未来を包摂する新しいアプローチが求められる。福井県小浜市の旧市街を対象に、自転車・電動スクーターなどのスモールモビリティを中心とする交通システムへの移行を提案し、その際に求められる都市を活性化するモビリティハブを設計する。
近現代の鉄道駅や「道の駅」、或いは近世の船場町や宿場町を鑑みると、モビリティハブは単なる交通の結節点としての機能に加えて、大勢の人が集まることによる活気が、さらに多くの人を呼び寄せる街の核となり得る。
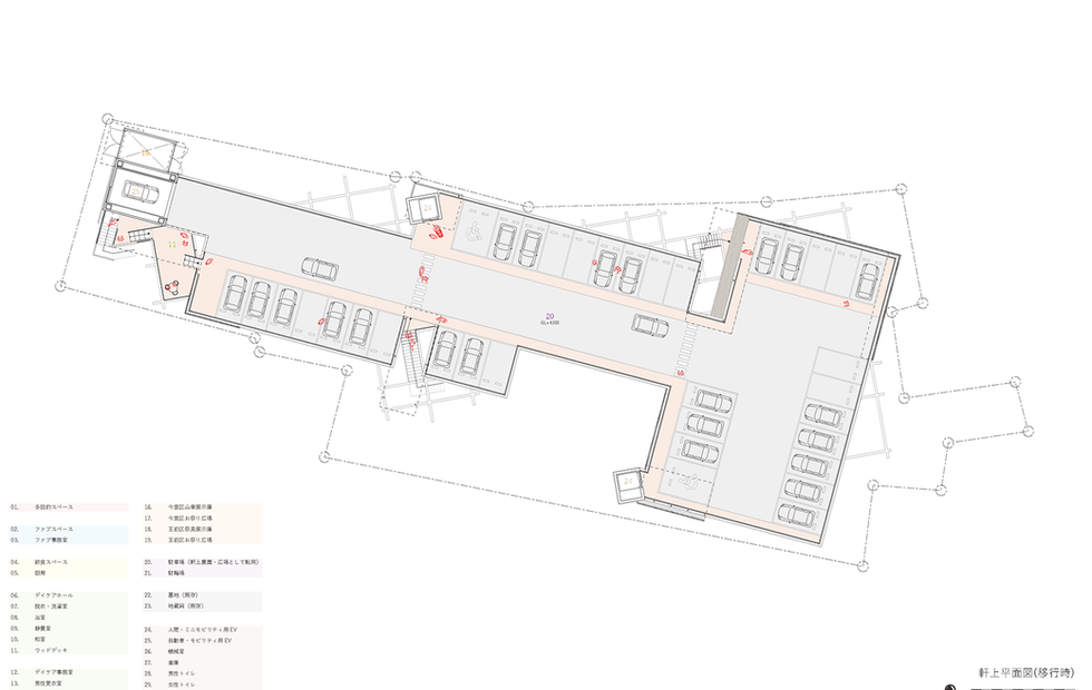
設計に際して、祭事に関わるハレの場から既存のお墓、モビリティの整備、高齢者ケアといった日常の場まで、幅広い活動を包括する街の骨格として建築物を提案し、街区の中心にある空地に埋込む。自動車からスモールモビリティへの都市インフラの変化に応じて、徐々に機能が置き換わる漸進的な変化を許容する強固な骨格として建築物が機能することを意図する。
When exploring the sustainability of cities in Japanese rural areas where the population is decreasing and aging, a new city-scale approach that includes the past, present, and future of the place is required.
Targeting the old town of Obama-City, Fukui-Prefecture, I propose a transition to a new transportation system centered on small mobility such as bicycles and electric scooters, and design a mobility hub that will revitalize the city.
Looking at modern railway stations and roadside stations, as well as early modern ship-port towns and post towns, mobility hubs not only function as simple transportation nodes, but also have the vitality of gathering large numbers of people, and can become the core of a city.
So when designing, I propose a building as the framework itself of the city that encompasses a wide range of activities, from annual city-festival occasions to existing graves, mobility maintenance, and everyday places such as care for the elderly. Embedded in the city's traditional streets axis context, in response to the change in urban infrastructure from automobiles to small mobility, the building is intended to function as a strong framework that allows for gradual changes in which functions are gradually replaced.

















